
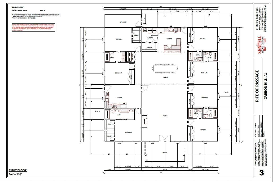
This cottage will be home to six boys that have been placed with Rite of Passage Ranch. Thank you to Chris for his hard work drawing up the plans and editing the many changes we made.
We have had a concrete business offer the labor for free, we just have to buy the concrete. A plumber has offered to do the plumbing free of charge, we just have to supply material. If you are a tradesman and can volunteer your services we would appreciate it. Please contact Clayton at 205-303-5045.
If you can donate services, time or finances please contact Clayton at 205-303-5045.
We are in need of monthly recurring donors, if you can invest $25, $50 or $100 a month we would really appreciate it.



Copyright © 2024 Rite of Passage Ranch - All Rights Reserved.
Powered by GoDaddy
We use cookies to analyze website traffic and optimize your website experience. By accepting our use of cookies, your data will be aggregated with all other user data.